+91 9904000336

Spherical Disc Butterfly Valve

Uni-Tech make Spherical Disc Type Butterfly Valves are giving extremely high performance at very lower operating torque with some significant features like lower weight, compact design, replaceable seat and easy maintenance. PTFE seat ensures smooth working life under temperature Upto 210” centigrade. For higher size these valves are stringly recommended.

Technical Specification

Design Standard API 609
Face to Face Standard BS 5155 / API 609 Category B
Top Flange Drilling ISO 5211
Inspection & Testing BS 6722 Part-1 / API 598 / EN 12233-1
Flange Standard ANSI 150 / IS 6392 NP 1.0 / 1.6

Valve Inspections Testing

Test PN 10
Body (Hyd.) 15 Kg/cm²
Seat (Hyd.) 10 Kg/cm²
Seat (Air.) 7 Kg/cm²

Technical Specification

Body : WCB / CF8 / CF8M Disc : CF8 / CF8M Retainer : WCB / CF8 / CF8M Seat Ring : PTFE / GFT / VITON Shaft : AISI 410 / 304 / 316 Shaft Bearing Bush : AISI 410 / 304 / 316 Gland : WCB / CF8 Gland Packaing : PTFE Bottom Cover : WCB / CF8 L. N. Bolt : S.S. 202 / S.S. 304 Lever : M.S.

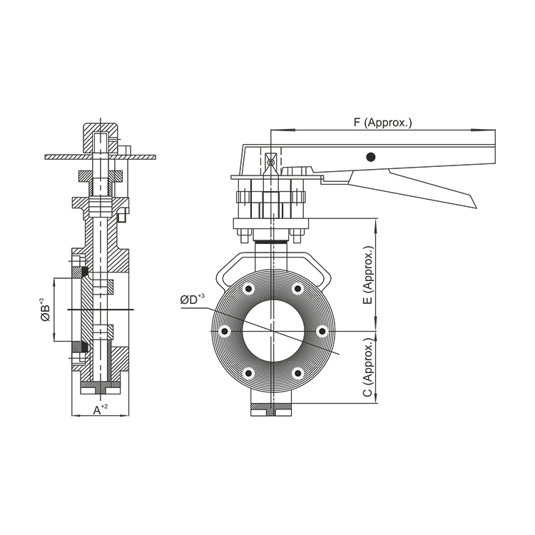
All Dimensions are in mm Unless Specified

Inch MM A ∅B C ∅D E F
1½" 40 42 40 51 85 85 180
2" 50 45 51 58 98 90 180
2½" 65 48 61 63 115 102 180
3" 80 48 72 70 131 120 215
4" 100 54 100 86 159 134 215
5" 125 57 123 105 188 154 265
6" 150 57 143 120 219 170 265
8" 200 63 192 145 272 200 325
10" 250 72 240 175 325 230 -
12" 300 83 290 215 385 270 -

The Most reduced Cost System Is To Pick Solid Unitech Valves.

Unitech Valve, with its accomplished trained professionals, spends significant time in assembling modern valves and offers specialized help and one-stop answers for the worldwide market.